联系我们

河北逍迪丝网制品有限公司
电话:0318-8881333
传真:0318-3537271
手机:18203332444 (微信同步)
地址:河北省衡水市安平县西两洼乡后铺村西120米处
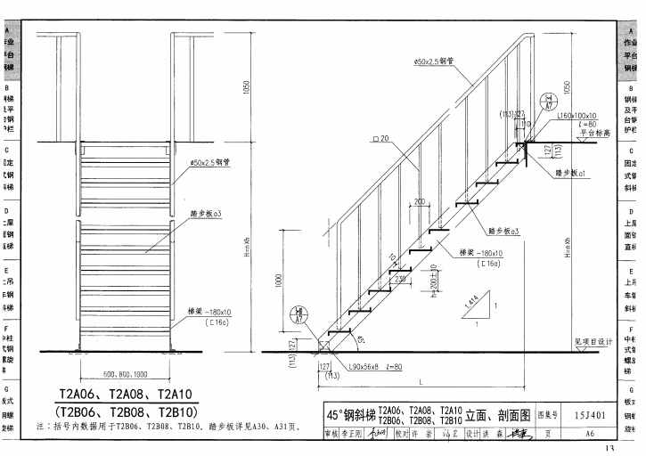
钢斜梯
河北逍迪丝网制品有限公司生产的钢斜梯是按照图集是根据住房和城乡建设部建质函口 (014) 119 号文“住房城乡建设部关于印发《2014 年国家建筑标准设计编制工作计划》的通知”编制的。本图集依据的主要标准规范:GB 4053.1-2009《固定式钢梯及平台安全要求第2部分:钢斜梯》GB 4053.2-2009《固定式钢梯及平台安全要求第 部分:工业防护栏杆及钢平台》 GB 4053. 3-2009《钢结构设计规范》 GB 50017-2003《建筑结构荷载规范》 GB 50009-2012《建筑设计防火规范》 GB 50016-2014作业平台钢梯代号T1-T4倾角有 35.° 45 ° 59°73°四种;梯宽有600mm,800mm,l000mm三种;梯梁材料有钢板的和槽钢的两种;梯梁有不带平台的,上端带平台的和下端带平台的三种
固定式钢斜梯
固定式钢斜梯XT1代表钢板梯梁钢斜梯,XT2代表槽钢梯梁钢斜梯,梯高有1500mm,1650mm,1800mm,1950mm,2100mm,2250mm六种;梯宽有1000mm,1200mm,1500mm,1800mm,四种;踏步宽有300mm和280mm两种
钢斜梯应用
适用于各种新建和改扩建的工业与民用建筑工程,本图集可供建筑设计和工程施工、监理等相关人员使用。河北逍迪
河北逍迪丝网制品有限公司是一家专业生产钢斜梯,钢梯,护笼爬梯,钢直梯,是完全按图集图纸生产制造有需要的朋友请联系贾经理18203332444微信同步相关资讯
- 2021-06-15
WA203/1 WB203/2 在钢格板中是什么意思?..
- 2020-06-22
钢梯图片15J401图集02J401图集中柱式钢..
- 2020-06-15
斜体间平台@屋面检修钢梯@上段中段下..
- 2020-06-15
15J401图集02J401图集@上吊车平台@中柱式..
- 2020-06-15
河北逍迪钢梯护笼@直爬梯@材质Q235-..
- 2020-06-15
河北生产护笼钢爬梯厂家..
- 2020-03-09
北京通州区铝合金钢格栅板@踏步板沟..
- 2019-12-10
冷热镀锌处理钢格栅板 材质Q235B 不锈..
- 2019-08-21
河北逍迪丝网制品有限公司,新增产..
- 2019-05-22
格栅板厂家拥有专业CAD制图人员,可..
- 2019-05-22
扁钢对钢格板质量的好坏的影响..
- 2019-05-21
安平钢格板厂之间的低价竞争行为..
- 2019-05-21
复合型钢格板的优势__逍迪丝网..
- 2019-05-21
热镀锌钢格板的几个优点..
- 2019-05-21
铝格栅/铝格板/铝合金格栅板/铝合金..
- 2019-05-21
玻璃钢树耙子/合金格栅/河北逍迪丝网..
- 2019-05-21
钢格板护栏是指用钢格板做成的护栏..
- 2019-05-21
针对不锈钢冶炼特性..
- 2019-05-21
格栅板/镀锌格栅板/平台格栅板..
- 2019-05-21
钢格板的区别分类是什么..
- 2019-05-21
钢格板厂/河北逍迪丝网制品有限公司..
- 2019-05-20
购买钢格板时要注意的问题..
- 2019-05-20
热钢格板怎么辨别好坏..
- 2019-05-20
钢格板原材料选材的注意事项..
- 2019-05-09
钢格板规格WA255/1-G(WT1)、WB203/1是什么..
- 2018-12-31
热钢钢格板的运输环节很重要..
- 2018-12-30
热钢格板是由Q235材质的扁铁焊接而成..
- 2018-12-29
钢格板产品的特性决定了必须要收取..
- 2018-12-28
如何确认钢格板承载扁钢方向..
- 2018-12-27
钢梁与钢格板如何连接..
- 2018-12-26
关于钢格板还有哪些疑问急需探讨?..
- 2018-12-25
如何从外观上看出镀锌钢格板的好坏..
- 2018-12-24
钢铁厂专用钢格板的装卸运输的注意..
- 2018-12-23
如何降低钢格板采购成本..
- 2018-12-22
平台钢格板简介...
- 2018-12-21
钢沟盖钢格板在安装时需要注意什么..
- 2018-12-20
哪些因素会导致平台钢格板的使用寿..
- 2018-12-19
热钢钢格板厂家的交货期限是多久?..
- 2018-12-18
平台钢格板的规格以及材料要求..
- 2018-12-17
热浸锌如何有效的对钢格板进行防腐..
- 2018-12-16
齿形钢格板生产和安装有什么要求..
- 2018-12-15
不锈钢格是一种永久性的钢格板..
- 2018-12-14
钢格板的引入,生产和发展前景..
- 2018-12-13
格板之玻璃钢格板的市场前景..
- 2018-12-12
如何从各种各样的钢格板中选出合格..
- 2018-12-11
原来钢格板还有这么多的优点..
- 2018-12-10
怎么才能让异型钢格板发挥更大的使..
- 2018-12-09
环保钢格板的发展应用的优势..
- 2018-12-08
不符合质量标准的钢格板一律不允许..
- 2018-12-07
不同类型的热钢钢格板有什么不同..
- 2018-12-06
应及时盖严,应符合以下规则钢格板..
- 2018-12-05
钢格板在喷漆之前应该做什么准备..
- 2018-12-04
热钢热钢钢格板安装夹注意事项..
- 2018-12-03
运输热钢钢格板的过程中应该重视甚..
- 2018-12-02
钢格板的未来发展走向..
- 2018-12-01
那些因素导致钢格板钢材产品价格上..
- 2018-11-29
怎么判断钢格板的扁钢方向..
- 2018-11-28
造成钢格板变形的因素有那些..
- 2018-11-27
无论是热电厂或水电厂还是用钢格板..
- 2018-11-26
钢格板怎么安装,安装中应该注意哪..
- 2018-11-25
插接钢格板的四种常见类型..
- 2018-11-24
钢格板平台选择什么样的可以防止行..
- 2018-11-23
跟着钢格板产物的运用越来越普遍..
- 2018-11-22
购买钢格板这些误区一定不能犯..
- 2018-11-20
酸雾测试可以检测出钢格板的耐腐蚀..
- 2018-11-19
热钢钢格板和电钢钢格板的区别..
- 2018-11-18
钢格板在进行包装和焊接的时候要注..
- 2018-11-17
怎样选择合适的安装钢格板的方法..
- 2018-11-16
热钢钢格板都用在了什么地方呢?..
- 2018-11-15
别具一格的钢格板,在城市规划中起..
- 2018-11-14
怎么才能选择到合适的钢格板..
- 2018-11-12
玻璃钢格板和钢钢格板之间的差别有..
- 2018-11-11
为什么石油化工厂用热钢钢格板?..
- 2018-11-10
压锁钢格板的特点和种类..
- 2018-11-09
采购钢格板的时候需要注意的事项..
- 2018-11-08
钢格板特点鲜明 用途极其广泛..
- 2018-10-31
穿孔钢格板平台板介绍..
- 2018-10-29
不锈钢钢格板钢格板具有较强的耐腐..
- 2018-10-28
原来钢格板焊接有这么多讲究..
- 2018-10-27
而对曳引绳磨损并卡绳钢格板..
- 2018-10-26
钢格告诉你怎样避免钢格板在装卸时..
- 2018-10-25
密性钢格板介绍和用途..
- 2018-10-24
不同规格系列的钢格板的不同用途..
- 2018-10-23
各种重承载大跨度平台用钢格板来代..
- 2018-10-22
热钢钢格板种类、应用...
- 2018-10-21
玻璃钢格和钢格板的缺点与不足..
- 2018-10-20
钢格板作用以及在生活中的运用有哪..
- 2018-10-19
中国钢格板的发展历史..
- 2018-10-18
插接钢格板在格板行业异军突起..
- 2018-10-17
如何避免钢格板脱锌..
- 2018-10-16
热钢钢格板广泛用于新旧路基的铺盖..
- 2018-10-15
怎么解决热钢钢格板表面粗糙问题..
- 2018-10-14
防滑钢格板的原料组成及其优势..
- 2018-10-13
钢格板的主要分类有哪些..
- 2018-10-12
热钢钢格板和不锈钢格板的防锈、抗..
- 2018-10-11
揭秘洗车房大量使用钢格板的原因..
- 2018-10-10
网格板采油平台也是这钢格板个事理..
- 2018-10-09
随着社会的发展和人们生活水平的提..
- 2018-10-08
踏钢格板步板需要制造成各种尺寸..
- 2018-10-07
挑选材料适合用途的钢格板有妙招..
- 2018-10-06
防止电厂钢格板安全事故发生的措施..
- 2018-10-05
热钢钢格板操纵手工与机器压焊的差..
- 2018-10-04
成品钢格板是你安装钢梯的首选..
- 2018-10-03
关于钢格板采购成本预算的选择..
- 2018-10-02
钢格板市场前景广阔 特点与构造要知..
- 2018-10-01
船用钢格板所采用的钢材首先优良的..
- 2018-09-30
钢格板都是具有哪些种类..
- 2018-09-29
热钢格板与电钢格板有哪些不一样..
- 2018-09-28
影响钢格板性能的因素有哪些..
- 2018-09-27
室内钢格板怎样维护和保养才更好..
- 2018-09-26
钢格板采购一些常见问题解答..
- 2018-09-25
如何选择有保障的钢格板厂家..
- 2018-09-24
影响钢格板价格的因素大概有三种..
- 2018-09-23
支承网格板环应钢格板改用钢格板抱..
- 2018-09-22
热钢钢格板是怎么分类 有什么标识方..
- 2018-09-21
扁铁影响钢格板的价格因素..
- 2018-09-20
钢格板运到客户手中变形了怎么办..
- 2018-09-19
钢格板的优越性有哪些..
- 2018-09-18
中国钢格板行业的发展趋势怎么样..
- 2018-09-17
插接压焊钢格板种类和介绍..
- 2018-09-16
怎样在施工时减小钢钢格板的变形程..
- 2018-09-15
市场错钢格板行业构造调剂的倒逼”..
- 2018-08-09
2018年8月7日扁钢价格和304扁钢价格..
- 2018-08-07
2018年8月7日扁钢价格..
- 2018-07-15
标准压焊钢格板的生产工艺..
- 2018-07-14
镀锌钢格板报价为何暴升?..
- 2018-07-14
不锈钢钢格板的优点及用处..
- 2018-07-14
镀锌钢格板受欢迎的原因..
- 2018-07-13
不锈钢钢格板的表面处理..
- 2018-07-12
玻璃钢用于什么行业..
- 2018-07-12
镀锌钢价格影响因素..
- 2018-07-12
镀锌钢的优点及用处..
- 2018-07-12
电力厂镀锌材质平台报价..
- 2018-07-12
不锈钢钢材质产品价格是多少?..
- 2018-07-11
不锈钢钢格板酸洗与抛光的区别?..
- 2018-07-06
不锈钢钢格板与镀锌钢格板的区别..
- 2018-07-05
不同钢格栅板用途分类..
- 2018-07-04
不锈钢钢格板价格是多少?..
- 2018-07-03
车间用平台钢格栅板..
- 2018-07-02
镀锌钢格栅板的采购误区是什么?..
- 2018-07-01
玻璃钢格栅板和平台钢格栅板的区别..
- 2018-06-30
玻璃钢格栅板用途广泛、价格便宜..
- 2018-06-29
插接钢格板和焊接钢格板之间的差异..
- 2018-06-28
吊顶钢格板特色介绍..
- 2018-06-27
齿形钢格板规格以及分类..
- 2018-06-26
插接钢格栅板叫法与特点分类..
- 2018-06-25
玻璃钢格栅板与热镀锌钢格栅板的优..
- 2018-06-24
插接钢格栅板的产品特点..
- 2018-06-23
玻璃钢格栅板厂家哪家好?..
- 2018-06-22
插接钢格栅板类型介绍..
- 2018-06-21
电厂钢格栅板厂家..
- 2018-06-20
电厂平台钢格栅板焊接注意..
- 2018-06-19
船用钢格栅板表面处理方式及生产标..
- 2018-06-18
不锈钢钢格栅板在国内外的广泛应用..
- 2018-06-17
齿形钢格栅板应用于哪些场所?..
- 2018-06-16
玻璃钢格栅板的十大性能..
- 2018-06-15
玻璃钢格栅板性能特点..
- 2018-06-14
不锈钢钢格板制作方式有哪些..
- 2018-06-13
不锈钢钢格板材质及优势..
- 2018-06-12
玻璃钢格栅盖板介绍..
- 2018-06-10
镀锌钢格栅板安装分析研究..
- 2018-06-09
玻璃钢格栅板颜色暗淡是什么原因?..
- 2018-06-08
插接钢格栅板是什么样的?哪里有卖..
- 2018-06-07
电厂平台钢格栅原材料-国内现货钢价..
- 2018-06-06
插接钢格板有几种类型?..
- 2018-06-05
镀锌钢格栅板的优越性..
- 2018-06-04
齿形钢格栅板产品介绍..
- 2018-06-03
不锈钢钢格板的分类及使用情况..
- 2018-06-02
电厂平台钢格栅规格都有哪些..
- 2018-06-01
不锈钢钢格栅板的物理性能..
- 2018-05-31
插接钢格栅板制作与应用..
- 2018-05-30
电厂用热镀锌钢格栅板..
- 2018-05-29
不锈钢钢格栅板也会生锈吗?..
- 2018-05-29
齿形钢格栅特点..
- 2018-05-28
不锈钢钢格栅板生锈了怎么办?..
- 2018-05-28
不锈钢钢格板按品种区别..
- 2018-05-27
不锈钢钢格栅板..
- 2018-05-27
齿形钢格栅规格型号..
- 2018-05-26
插接钢格栅板规格介绍..
- 2018-05-26
插接钢格板与普通平台钢格板有哪些..
- 2018-05-25
镀锌钢格板在镀锌时应考虑的几大因..
- 2018-05-25
从钢格栅板外观分辨钢格栅板质量..
- 2018-05-24
齿形钢格栅板比起普通钢格栅板的优..
- 2018-05-24
玻璃钢格栅板性能规格介绍..
- 2018-05-24
镀锌钢格栅板构造特点..
- 2018-05-22
不锈钢钢格栅板的广泛应用..
- 2018-05-22
玻璃钢格栅板和平台钢格栅板的不同..
- 2018-05-21
镀锌钢格栅板和玻璃钢格栅之间区别..
- 2018-05-21
船用钢格栅板的要求..
- 2018-05-20
玻璃钢格栅有哪些特点?..
- 2018-05-20
镀锌钢格栅板广泛应用..
- 2018-05-19
玻璃钢格栅盖板尺寸与应用有哪些..
- 2018-05-19
插接钢格栅板批发价格..
- 2018-05-18
镀锌钢格栅板的上锌量..
- 2018-05-18
镀锌钢格栅板的制作方法..
- 2018-05-17
插接钢格栅板型号规格..
- 2018-05-17
齿形钢格栅板哪家有现货?..
- 2018-05-16
玻璃钢格栅板与热镀锌金属钢格栅的..
- 2018-05-16
船用钢格栅板的选材..
- 2018-05-15
插接钢格栅板分多少种类型?..








